Algemene omschrijving van deze woning
Met veel trots mogen wij u dit wooncomplex met nieuwbouwappartementen aanbieden. Het complex is gelegen aan het Cosunpark te Breda.
Dit 5-laags appartementencomplex is voorzien van 24 woningen waarvan 18 appartementen en 6 maisonnette woningen.
De 6 maisonnette woningen zijn gelegen op de begane grond en gedeeltelijk in het souterrain
Het complex heeft een gunstige ligging met de snelweg en de woonboulevard om de hoek en de gezellige binnenstad van Breda binnen handbereik. Ook het Westerpark is op loopafstand bereikbaar.
Ziet u zichzelf hier al wonen, laat dan snel uw gegevens bij ons achter! Vanaf eind oktober zullen de eerste bezichtigingen gepland kunnen worden. We heten u hier van harte welkom.
Ligging Cosunpark
Cosun Park wordt straks een perfecte locatie om te wonen. Wonen dicht bij de levendige binnenstad terwijl het verrassend dorpse Princenhage om de hoek ligt. Op de fiets ben je zo in het hippe Ginneken. Even geen zin in de drukte? Kies dan voor een fikse boswandeling in het Liesbos of Mastbos. Tussen de 500 jaar oude bomen spot je misschien wel een boommarter of ree.
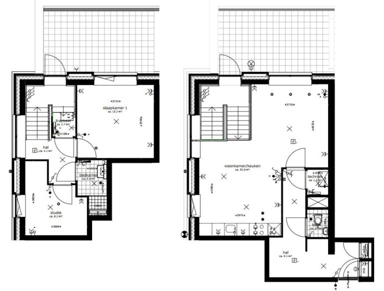
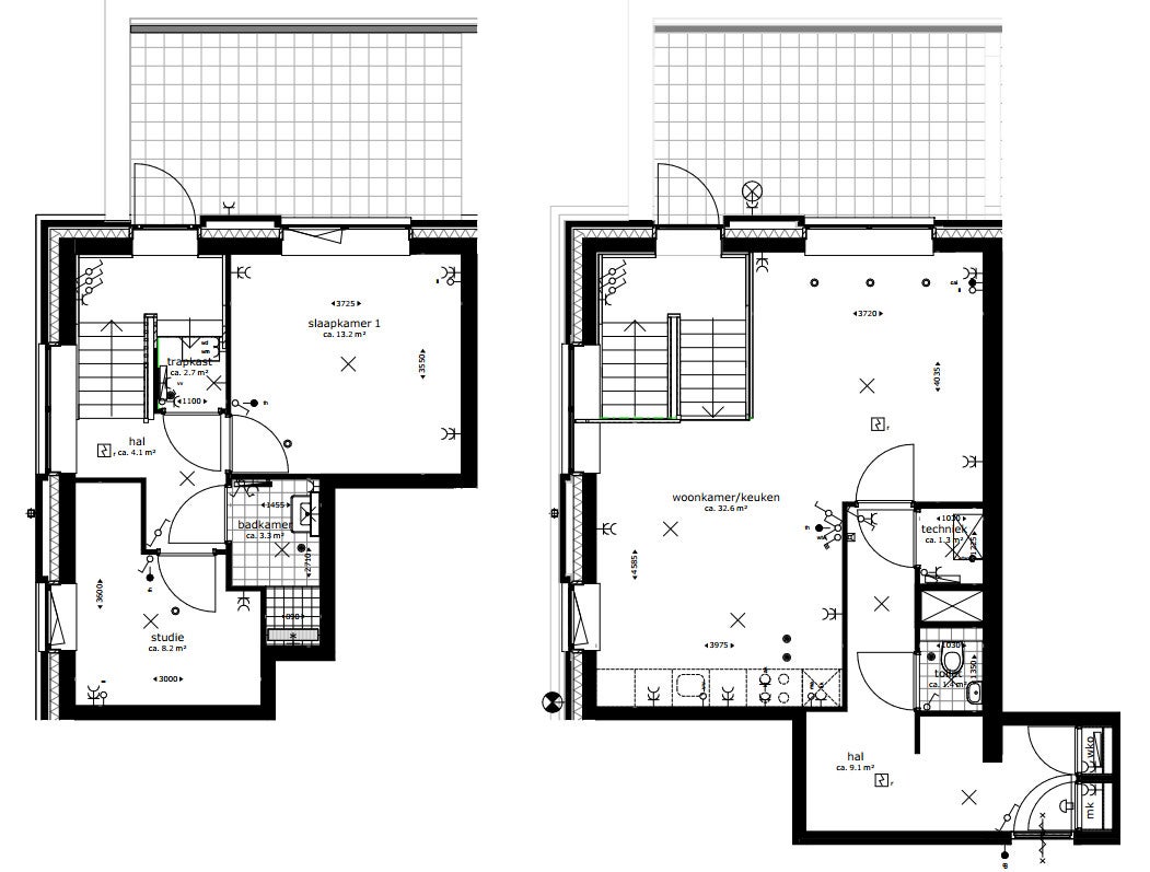
Indeling van het appartement
Begane grond:
Er is een algemene entree waar onder andere de brievenbussen en deurbellen aanwezig zijn. Vanuit de entree zijn alle verdiepingen per trap en lift bereikbaar.
Keukens:
Alle keukens is opgeleverd met een moderne uitstraling. Daarnaast voorzien de keukens in een inductie kookplaat, recirculatie afzuigkap, koelkast, vaatwasser, combioven, spoelbak met mengkraan en diverse (lade)kasten.
Badkamer:
De badkamers is afgeleverd met een donkerkleurige vloertegel en witte wandtegels. De badkamer is ingericht met een douche, wastafel met mengkraan, spiegel en een handdoekenradiator (in de meeste appartementen).
Toilet:
De toiletruimte is oplevert met een zwevend toilet, fonteintje, donkerkleurige vloertegel en witte wandtegels. De wanden worden halfhoog betegeld.
Woonkamer:
In de woonkamer zijn grote raampartijen aanwezig welke zorgen voor veel lichtinval. De aanwezige schuifpui geeft toegang tot het balkon.
Inpandige berging / wasruimte:
Het appartement is voorzien van een inpandige berging waar o.a. de aansluitingen voor wasmachine/droger aanwezig zijn en de WKO-installatie en verdeler van de vloerverwarming.
Externe berging:
Het appartement beschikt over een apart berging in het souterrain. Deze ruimte is ideaal voor stalling van fietsen.
Extra informatie
– Nieuwbouw complex;
– De woningen worden opgeleverd met Energielabel A++ of A+++;
– Privé parking;
– Privé berging in souterrain;
– Naar eigen smaak in te richten;
– Voor onbepaalde tijd beschikbaar;
Servicekosten opbouw
Bovenop de huurprijs betaald u maandelijks ook een vaste vergoeding aan servicekosten. Deze servicekosten bedragen € 50,00 p/maand.
In deze servicekosten zijn o.a. de volgende voorzieningen opgenomen:
– Elektra verbruik van de algemene ruimten en voorzieningen;
– Waterverbruik van de algemene ruimten
– Schoonmaakkosten van de algemene ruimten;
– Lift onderhoud voor zover dit voor rekening van huurders komt
– Tuinonderhoud voor zover dit voor rekening van huurders komt
– 5% administratiekosten
Voor het parkeren in de parkeergarage naast het complex geldt een maandelijkse vergoeding van €125,00, bovenop de servicekosten.
De totale huurprijs komt daarmee op €2.017,00 per maand.






















