Bedrijven, Expats opgelet!
In het centrum van Sint Jansteen gelegen kleinschalig wooncomplex met in totaal 13 wooneenheden. Deze studio wordt u volledig gestoffeerd en gemeubileerd aangeboden.
Sint Jansteen is gelegen in Zeeuws-Vlaanderen met een goede bereikbaarheid naar Terneuzen (20 min), Gent (40 min.) en Antwerpen (30 min.)
Daarnaast zijn op loopafstand bereikbaar een supermarkt, cafetaria, cafés en restaurants.
Deze studio is per 01-11 beschikbaar en wordt voor onbepaalde tijd aangeboden.
Op zoek naar een leuke studio voor uzelf, voor uw personeel en/of komt u als EXPAT naar Zeeuws-Vlaanderen of Antwerpen, dan is dit zeker iets voor u?
Indeling van de woning:
Iedere studio heeft een eigen voordeur met daarachter een woon/slaapkamer en eigen keuken.
De keuken is voorzien van een koelkast, combimagnetron, inductie gaskookplaat, afzuigunit en spoelbak met mengkraan.
In woon/slaapkamer zijn aanwezig een bankstel, tafel met stoelen, tv met tv-meubel eenpersoonsbed en kledingkast.
De badkamer, toilet en wasruimte zijn gedeeld. Deze ruimtes worden gedeeld met in maximaal totaal 3 personen.
Tuin/Patio:
Aan de achterzijde van het complex is een gezamenlijke tuin/patio aanwezig.
Alle bewoners mogen hiervan gebruik maken.
Hier heeft u tevens de mogelijkheid uw fiets te stallen en tevens vind u hier de opstelplaats van de containers terug.
De achtertuin zal op termijn worden aangepakt en worden voorzien van nieuwe bestrating.
Huurprijs en Servicekosten:
De studio’s worden met een ALL-IN huurprijs aangeboden.
Huurprijsopbouw is als volgt:
€ 600,00 – Huurprijs incl. inventaris:
€ 60,00 – Het voorschot op de servicekosten
€ 85,00 – Voorschot GWE
€ 10,00 – TV Internet
€ 15,00 – gemeentelijke heffingen
€ 30,00 – De vergoeding op de toeristenbelasting
€ 800,00 – Totaalbedrag per maand
In deze servicekosten zijn o.a. de volgende leveringen en diensten opgenomen:
– Het voorschot voor het gebruik van de aanwezige afvalcontainers
– Het voorschot op schoonmaakkosten van de algemene ruimtes
– Het voorschot op onderhoudskosten van de binnenplaats
– Het voorschot op kosten voor glasbewassing
– Het voorschot voor kleine herstellingen in de kamers en algemene ruimtes
– Het voorschot op de glasverzekering
– 5% administratiekosten
Bij aanvang van de huurperiode wordt er een waarborgsom van 2x de kale huurprijs in rekening gebracht.
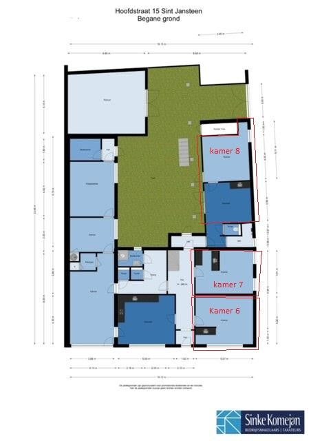
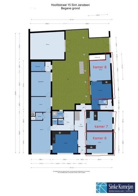
Beschikbare kamers:
De beschikbare kamers in het complex zijn als volgt::
– Kamer 1: €800,00 ALL-IN (max 1 persoon)
– Kamer 2: €800,00 ALL-IN (max 1 persoon)
– Kamer 4: €800,00 ALL-IN (max 1 persoon)
– Kamer 5: €1.175,00 ALL-IN (max 2 personen)
– Kamer 6: €810,00 ALL-IN (max 1 persoon)
– Kamer 7: €810,00 ALL-IN (max 1 persoon)
– Kamer 12: €810,00 ALL-IN (max 1 persoon)
Alle huurprijs zijn EXCL BTW.
Extra informatie:
- Beschikbaar per 01-11
- Puur gericht op Expats en/of Bedrijven die voor personeelhuivesting zoekt
- Volledig gestoffeerd en gemeubileerd;
- Vrij parkeren in de straat en omgeving;
- In het centrum van Sint Jansteen;
- Gelegen op korte afstand van Antwerpen en Gent;
- De studio’s worden ALL-IN (inclusief energie/water, tv-internet en heffingen) aangeboden;
Foto’s advertentie:
De foto’s in de advertentie kunnen afwijken van de werkelijke studio. De studio’s in het complex hebben eenzelfde indeling en uitstraling. Om een goed beeld te krijgen van de studio is een bezichtiging zeker aan te raden!













