Algemene omschrijving van deze woning
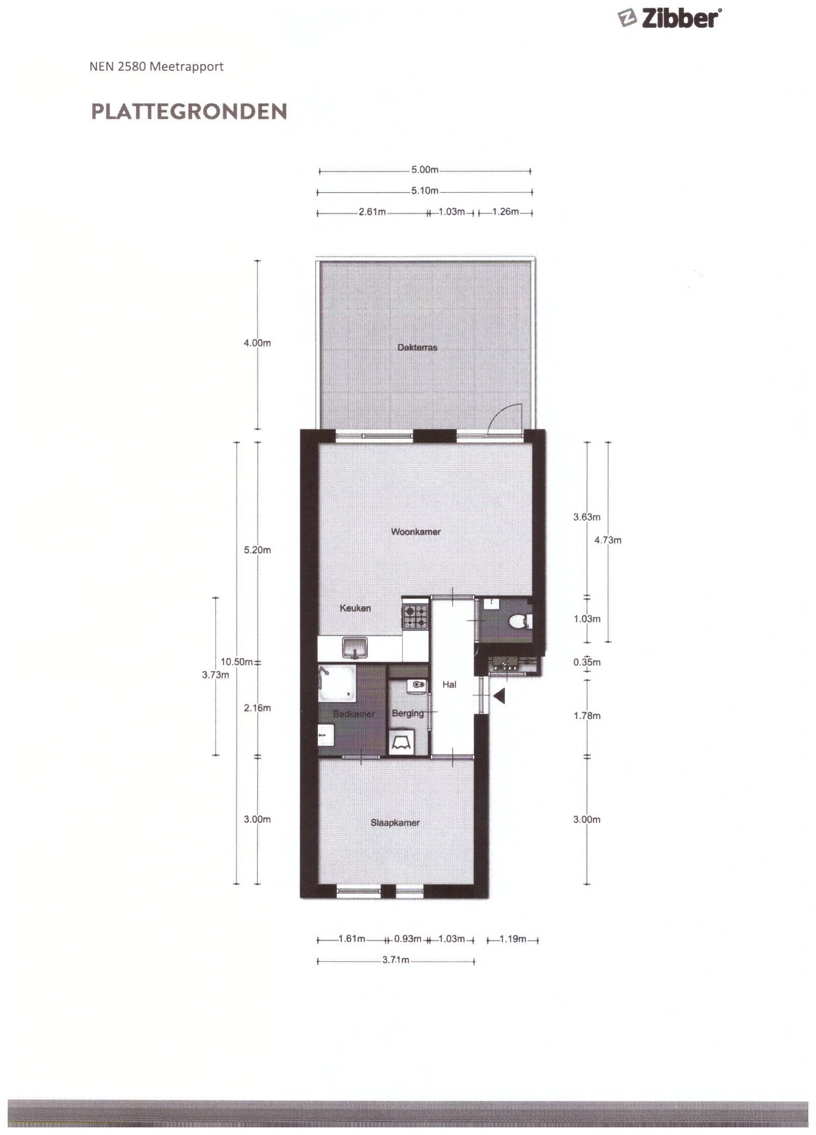
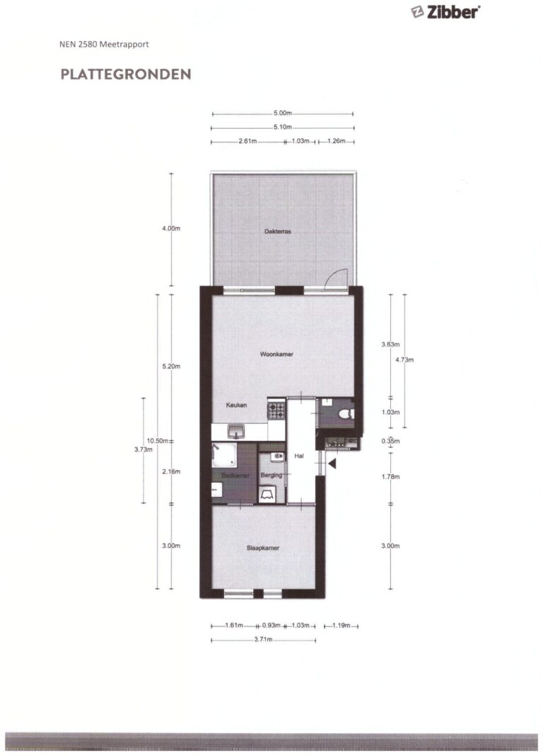
Goed onderhouden en afgewerkt appartement, met een goede locatie in het centrum van Roosendaal. Het appartement is gelegen op de eerste verdieping en heeft 2 kamers. Verder heeft het een totale oppervlakte van 54m2 en is het complex pas in 2002 gebouwd.
Het appartement is instapklaar!
Indeling van deze woning
Royale hal met toegang tot o.a. technische ruimte cv ketel en aansluitpunten witgoed.
Betegeld toilet met vrijdragend toilet met fonteintje.
Sfeervolle woonkamer met laminaatvloer, grote raampartij die voor veel lichtinval zorgt en deur naar groot dakterras (500 x 370).
Open keuken in hoekopstelling met kunststof aanrechtblad voorzien van diverse inbouwapparatuur zoals een koelkast met vriesvaktje, afzuigkap, gaskookplaat en oven.
Slaapkamer met laminaatvloer ( 3,71 m x 3, 00 m). Deze ruimte is voorzien van rolluiken.
Aansluitend aan de slaapkamer een geheel betegelde badkamer met ligbad, vaste wastafel en designradiator.
Exterieur
Verrassend groot beschut terras, gelegen op zuidwesten. Ideaal om hier wat uurtjes door te brengen met vrienden en familie.
Tevens is hier een berging aanwezig voor het plaatsen van fietsen etc.
Extra informatie
– Appartement geheel voorzien van mooie laminaatvloer en stucwerk.
– De foto’s in de advertentie dateren van ca. 2 jaar geleden er staan nu andere meubels in de woning dan zichtbaar op de advertentie foto’s.
– U betaald een waarborgsom van 1 x de huurprijs bij aanvang van de huurperiode.
– U betaald ook (eind)schoonmaakkosten van € 200,00 bij aanvang van de huurperiode. Wordt het appartement netjes/schoon opgeleverd dan krijgt u deze kosten terug.
Parkeren
Er kan worden geparkeerd middels een parkeervergunning.
De kosten van een vergunning bedragen ca. € 60,00 p/jaar.
Optioneel is het huren van een parkeerplek in de parkeergarage via VvE.















